


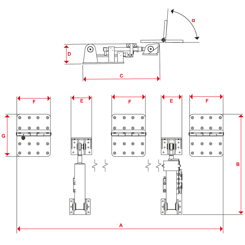
Sistema ribaltamento balcone composto da piastre di fissaggio a scafo, staffe di fissaggio al terrazzino, telaio ribaltamento ala mobile del sistema, cerniere a libro realizzate in acciaio INOX AISI 316L.
La movimentazione è effettuata attraverso un attuatore oleodinamico lineare; inoltre è presente un sistema di blocco in posizione chiusa composto da attuatore elettrico montato all’interno dell’ala mobile.
Centralina idraulica, elettronica, pulsantiera di comando e kit tubi oleodinamici completano la fornitura.